
| 產品名稱: | 襯氟球閥 |
|
Q41F46/襯F46/襯F4 |
|
|
手動,電動,氣動 |
|
法蘭 |
|
|
直通式 |
|
PTFE |
|
|
1.0MPa-1.6MPa |
|
DN15-250 |
|
|
鑄鋼,不銹鋼等 |
|
承質品牌 |
襯氟球閥,襯氟球閥就是將通用的浮動球閥進行更改,使閥體的內壁、內件外部全都覆蓋上氟塑料,凡是有介質接觸的地方都襯有氟塑料,從而達到耐腐蝕性能。
內腔及球體均采用高壓注塑工藝襯有耐腐蝕、耐老化的氟塑料,故具有可靠的耐腐蝕性和密封性。廣泛用于化工、石油、冶金、藥類等工業部門,實現對生產過程中酸、堿等強腐蝕介質的調節或切斷,在水處理過程控制中使用效果最明顯。
| 手動 | Q41F4 | 蝸輪 | Q341F4 |
| Q41F46 | Q341F46 | ||
| 氣動 | Q641F4 | 電動 | Q941F4 |
| Q641F46 | Q941F46 |
| 設計標準 | GB12237 |
| 結構長度 | GB12221 |
| 法蘭標準 | JB/T79-94 |
| GB9113.1-26 | |
| 檢驗試驗 | JB/T9092-99 |
| 驅動方式 | 手動、電動、氣動、蝸輪 |
| 序號 | 零件名稱 | 灰鑄鐵 | 鑄鋼 | 不銹耐酸鑄鋼 | 超低碳不銹耐酸鑄鋼 | ||
| Z | C | P8 | R8 | R3 | R3 | ||
| 1 | 閥體/閥蓋 | A216-C | A216-WCB | A351-CF8 | A351-CF8M | A351-CF3 | A351-CF3M |
| 2 | 球體/閥桿 | A216-WCB | A351-CF8 | A351-CF8M | A351-CF3 | A351-CF3M | |
| 3 | 襯里/閥座 | PTFE(F4)、PCTFE(F3)、FEP(F46)、PFA(可溶F4) | |||||
| 4 | 填料/壓蓋 | PTFE(F4) | A351-CF3 | A351-CF3 | |||
| 5 | 填料 | A216-WCB | A351-CF8 | A351-CF8 | |||
| 6 | 支架 | A193-B7 | A194-8 | A193-B8M | |||
| 7 | 緊固螺栓 | A193-B7 | A193-B8M | A194-8 | |||
| 8 | 螺母 | A194-2H | A194-8 | A194-8 | |||
| 9 | 操作手柄 | A216-WCB | A216-WCB | A216-WCB | |||
| 公稱通經 | L | D | D1 | D2 | f | b | Z-φd | |
| DN(mm) | NPS(inch) | PN1.0MPa | ||||||
| 15 | 1/2 | 130 | 95 | 65 | 45 | 2 | 14 | 4-φ14 |
| 20 | 3/4 | 140 | 105 | 75 | 55 | 2 | 16 | 4-φ14 |
| 25 | 1 | 150 | 115 | 85 | 65 | 2 | 16 | 4-φ14 |
| 32 | 5/4 | 165 | 135 | 100 | 78 | 2 | 18 | 4-φ18 |
| 40 | 3/2 | 180 | 145 | 110 | 85 | 3 | 18 | 4-φ18 |
| 50 | 2 | 200 | 160 | 125 | 100 | 3 | 20 | 4-φ18 |
| 65 | 5/2 | 220 | 180 | 145 | 120 | 3 | 20 | 4-φ18 |
| 80 | 3 | 250 | 195 | 160 | 135 | 3 | 22 | 4-φ18 |
| 100 | 4 | 280 | 215 | 180 | 155 | 3 | 22 | 8-φ18 |
| 125 | 5 | 320 | 245 | 210 | 185 | 3 | 24 | 8-φ18 |
| 150 | 6 | 360 | 280 | 240 | 210 | 3 | 24 | 8-φ23 |
| 200 | 8 | 457 | 335 | 295 | 265 | 3 | 26 | 8-φ23 |
| 250 | 10 | 533 | 390 | 350 | 320 | 3 | 28 | 12-φ23 |
| 公稱通經 | L | D | D1 | D2 | f | b | Z-φd | |
| DN(mm) | NPS(inch) | PN1.0MPa | ||||||
| 15 | 1/2 | 130 | 95 | 65 | 45 | 2 | 14 | 4-φ14 |
| 20 | 3/4 | 130 | 105 | 75 | 55 | 2 | 16 | 4-φ14 |
| 25 | 1 | 140 | 115 | 85 | 65 | 2 | 16 | 4-φ14 |
| 32 | 5/4 | 165 | 135 | 100 | 78 | 2 | 18 | 4-φ18 |
| 40 | 3/2 | 165 | 145 | 110 | 85 | 3 | 18 | 4-φ18 |
| 50 | 2 | 203 | 160 | 125 | 100 | 3 | 20 | 4-φ18 |
| 65 | 5/2 | 222 | 180 | 145 | 120 | 3 | 20 | 4-φ18 |
| 80 | 3 | 241 | 195 | 160 | 135 | 3 | 22 | 8-φ18 |
| 100 | 4 | 305 | 215 | 180 | 155 | 3 | 24 | 8-φ18 |
| 125 | 5 | 356 | 245 | 210 | 185 | 3 | 26 | 8-φ18 |
| 150 | 6 | 394 | 280 | 240 | 210 | 3 | 28 | 8-φ23 |
| 200 | 8 | 457 | 335 | 295 | 265 | 3 | 30 | 12-φ23 |

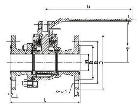
為您提供Q41F46襯氟球閥結構圖,本結構圖希望對您有所幫助。
1、Q41F46襯氟球閥結構設計的主要依據國家相關標準規定設計。
2、Q41F46襯氟球閥所采用的通用做法和標準構件圖集。
3、如有特殊Q41F46襯氟球閥構件需作結構性能檢驗時,應指出檢驗的方法與要求。
4、Q41F46襯氟球閥主要根據剖面、長度、高度、外形等作出說明。
5、Q41F46襯氟球閥所選用結構材料的品種、規格、性能及相應的產品標準。



【結構總結】
Q41F46襯氟球閥結構主要是給安裝單位提供具有更好的了解該Q41F46襯氟球閥的外形結構、使用時考慮到工況、環境等因數在應用中有著更合理的計劃規范,不會在安裝時產生空間使用不合理等常見問題。
襯氟球閥_(襯氟塑料,內襯四氟,襯F46)球閥尺寸圖:


|
聲明:【襯氟球閥PO/F46/F4/PFA】規格型號、結構尺寸由上海承質閥門制造有限公司提供,如何選擇適用的襯氟球閥PO/F46/F4/PFA產品,使之在工藝控制中安全可靠、經濟適用,可致電我司銷售部門及技術部門,我們將在最短的時間內為您解答! |